DÜZCE BEYCİLER'DE 300M2 BAHÇE KULLANIMI İLE 520 M2 7+1
İlan No:

12853

Görüntülenme:

60

İlan Tarihi:

21.02.2026

Durumu:

Satılık Villa

Alan:

520 m2

Fiyat:

17,500,000 TL

Oda Sayısı:

7+1

Banyo Sayısı:

4

Isıtma Tipi:

Yerden Isıtma

Konum:

Merkez / Düzce

İlan Özellikleri

DÜZCE MERKEZ- BEYCİLER MAHALLESİNDE SATILIK 300M2

TEKİL VİLLA

 

300 M2 OLAN VİLLAMIZIN TOPLAM ARSA ALANI 520 M2 DİR

4+1 ARTI KİLER VE EBEVEYN SUTİ 

YOPLAMDA 7+1 DEN OLUŞAN 

VİLLAMIZ BEYCİLER MAHALLESİNDE YAPILAN 15 ADET TEKİL VİLLA'DAN OLUŞMAKTADIR

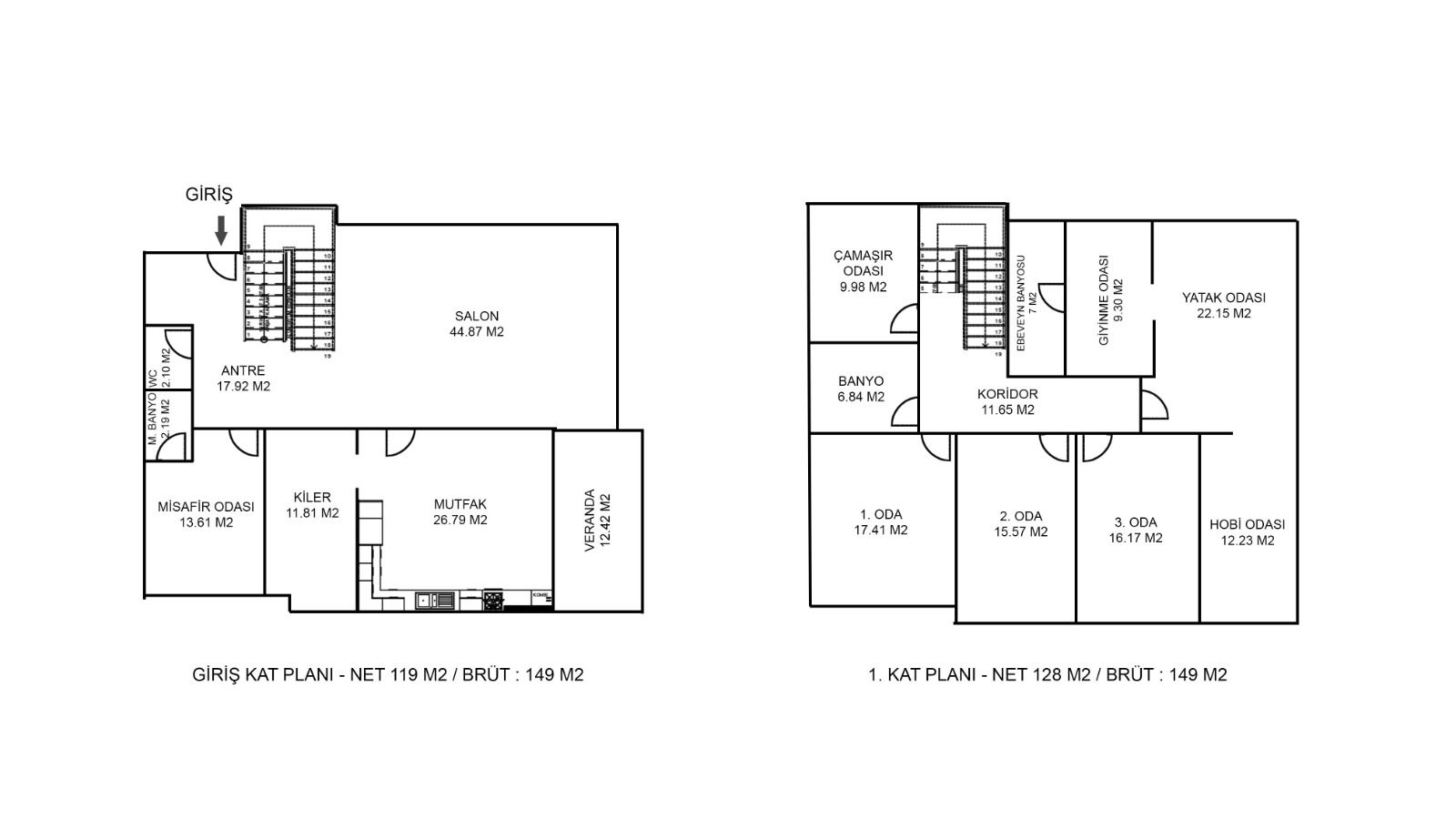
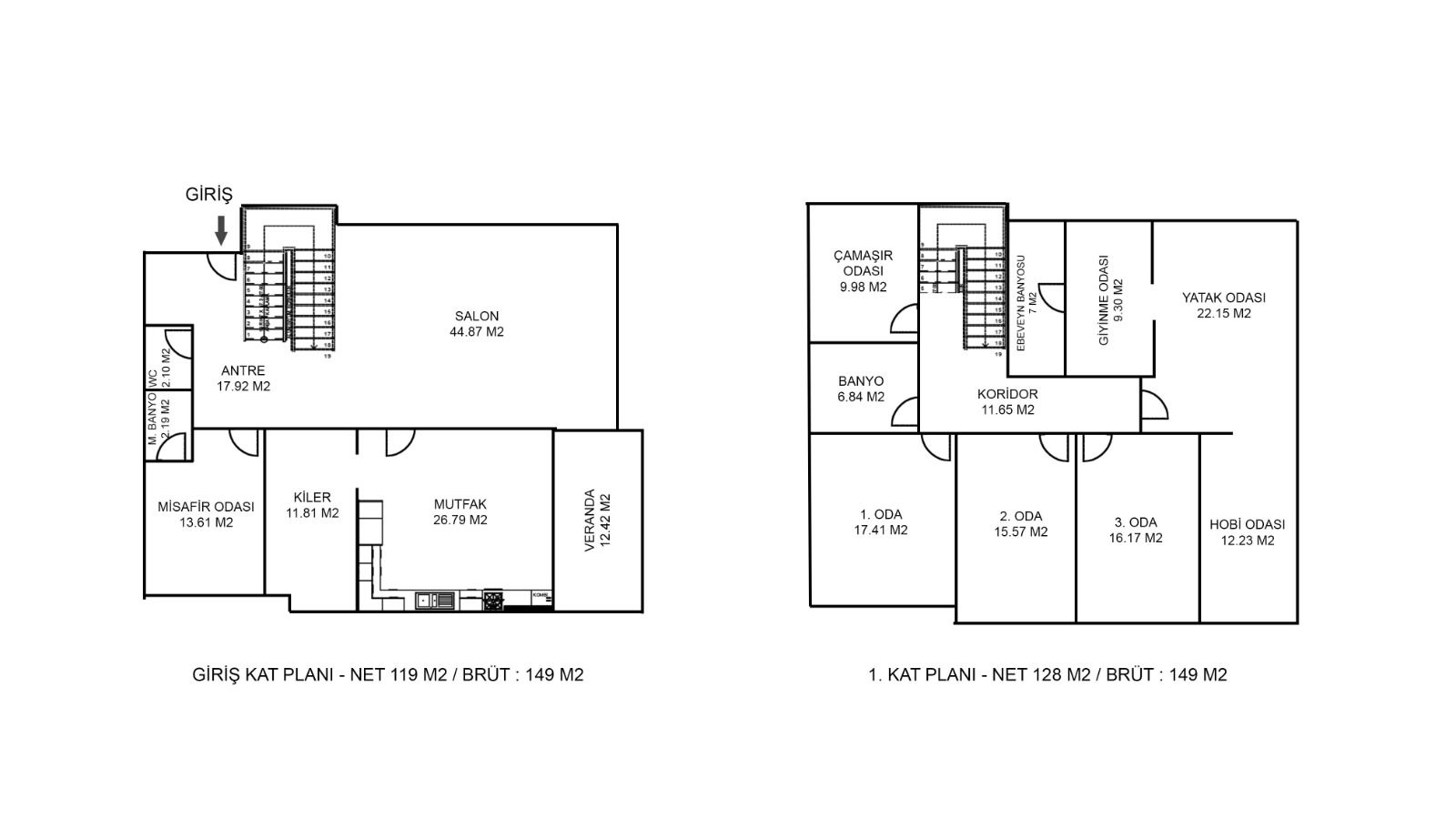
VİLLALARIMIZ ALT KAT 149M2

ÜST KAT 149 M2 OLUŞMAKTADIR

 

ALT KAT

SALON: 45 M2 

MUTFAK: 27 M2 

KİLER: 12 M2

MİSAFİR ODASI: 14 M2 

DUŞ: 2.19 M2

TUVALET: 2.10 M2

ANTRE: 18 M2

VERANDA: 13 M2

MERDİVENLER: 20 M2 

 

 

ÜST KAT

YATAK ODASI 1: 17.41 M2

YATAK ODASI 2: 15.50 M2

YATAK ODASI 3: 16.17 M2

ÇAMAŞIR ODASI: 9.98 M2

GENEL BANYO: 6.84 M2

KORİDOR:11.65 M2

 

EBEVEYN SUİTİ

EBEVEYN ODASI :22.15 M2

KİTAP+TV ODASI: 12.23 M2

GİYİNME ODASI: 9.30 M2 

DUŞ: 7 M2

MERDİVEN: 20 M2 

 

ISI YALITIMI 

SES YALITIMI 

 

ALT KAT VE ÜST KAT YÜKSEKLİK 3,5 METREDİR, VİLLAMIZ ALTTAN ISITMA TASARLANIP ZEMİNLER GRANİT KAPLAMADIR.

LOKASYON OLARAK:

KURUMSAL MARKETLER

LİSE 

ÜNİVERSİTE

ORTA OKUL-İLK OKUL

KREŞ

ÇOCUK OYUN ALANI 

ECZANE 

DÜZCE ÜNİVERSİTESİ VE ARAŞTIRMA HASTANESİNE 4 KM 

SAĞLIK OCAĞI

BELEDİYE 

AVM 

 

DÜZCE-AKÇAKOCA YOLUNA 100 M

AKÇAKOCAYA 15 DAKİKA 

DÜZCEYE 5 DK

MANTIKLI DEĞERİNDE TAKASLAR DEĞERLENDİRİLMEKTEDİR.

Konum

Adres :

Şehir : Merkez / Düzce

Emlak8 ile kazanan emlak ofislerinden biri olmak ister misiniz?

Emlak8; bir asistan gibi çalışarak hem portföyünüzü hem de müşteri ilişkilerinizi kolayca yönetmenizi sağlar.
Üstelik firmanıza özel internet sitesi ile dijitalde güçlü bir görünüm kazanırsınız.

Emlak8.net sitesinde kullanıcılar tarafından sağlanan her türlü ilan, bilgi, içerik ve görselin gerçekliği, orijinalliği, güvenilirliği ve doğruluğuna ilişkin sorumluluk bu içerikleri giren kullanıcıya ait olup, emlak8.net'in bu hususlarla ilgili herhangi bir sorumluluğu bulunmamaktadır.

© Copyright 2011 - 2026 Emlak8.net bir Kod8 projesidir.

Dijital Reklam Ajansı Serbay Interactive